Шкафы на заказ
  • Работаем с 1998 года
  • Собственное Производство
  • Хорошие Цены
  • Нас рекомендуют Друзьям и Знакомым
Изготовление гардеробных на заказ. Качественно и недорого

Шкафы на заказ
Изготовление гардеробных на заказ. Качественно и недорого

+7 (985) 951-43-97
Мессенжеры:
WhatsApp
Telegram
Max

E-mail: taburet@df.ru

ПОИСК ПО САЙТУ

МЕНЮ

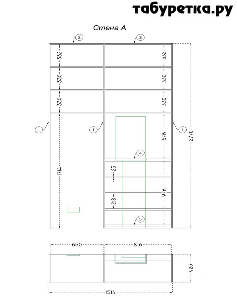
Чертёж левой стены гардеробной

Главная -> Гардеробные на заказ -> Чертёж левой стены гардеробной ГК-016-4



ПРОДУКЦИЯ


Шкафы на заказ

Шкафы-купе

Гардеробные на заказ

Распашные шкафы

Прихожие

Книжные шкафы и библиотеки

Гостиные и стенки

Чертёж левой стены гардеробной комнаты


Артикул: ГК-016-4

Цена: от 184441 руб.

( 28720 руб. / пог. м.)

Стоимость пересчитана по состоянию на январь 2026 года.

Гардеробная изготовлена на заказ по индивидуальным размерам, конструкция, комплектация и габариты могут быть любыми.

Характеристики

Размер

Высота: 2770 мм
Длина мебели по стенам: 6422 мм
Глубина: 600/420 мм

Мебель установлена в комнате площадью 4,9 кв. м. (размер по стенам 2124х2314 мм).

Материал:
ЛДСП U325 ST9 Розовый антик (Egger)

Мебель установлена по трём стенам гардеробной комнаты (буквой П).
Чертёж мебели по левой стене ("А") гардеробной.

Стоимость заказа рассчитывается индивидуально и зависит от размеров, конструкции и применяемых материалов для изготовления изделия.

Гарантия - 2 года (24 месяца).

Формы оплаты:

  • Наличные
  • Безналичный расчет

Доставка:

  • по Москве в пределах МКАД - 5000 руб.
  • за МКАД - 5000 руб. + 60 руб. за 1 км.

Стоимость сборки - 10% от стоимости материалов.

Написать в мессенджер

+7 985 951 43 97

WhatsApp


Telegram


Max



Еще фотографии:

Гардеробная с постирочной Гардеробная
с постирочной
Левая секция гардеробной комнаты Левая
секция
гардеробной
комнаты
Правая секция гардеробной комнаты Правая
секция
гардеробной
комнаты
План гардеробной комнаты План
гардеробной
комнаты
Чертёж центральной секции гардеробной Чертёж
гардеробной
центральная
секция
Чертёж правой стены гардеробной Чертёж
гардеробной
правая
стена
Эскиз гардеробной, вид сверху Эскиз
гардеробной
вид сверху
Эскиз центральной стены гардеробной Центральная
часть
гардеробной
Эскиз левого угла гардеробной комнаты Левый
угол
гардеробной
Эскиз правого угла гардеробной комнаты Правый
угол
гардеробной

Вы можете задать нам вопросы по телефонам, E-mail, или с помощью почтовой формы.

Ваше имя: *

Телефон:

E-mail:

Артикул: *



Ваш вопрос: *

Передаваемая информация используется только для информирования о товарах и услугах, представленных на сайте.

Поля со звездочками обязательны для заполнения.

Контакты

Акции и скидки

Отзывы

Оплата

Доставка и монтаж

Гарантия

О компании

Карта сайта



Рекомендуем
посмотреть:

Гардеробная с постирочной

Гардеробная
ГК-016
c постирочной

Гардеробная комната с островом

Гардеробная
ГК-015
в прихожей

Гардеробная комната с островом

Гардеробная
ГК-014
с островом

Гардеробная система Vitra

Гардеробная
Vitra
ГК-013

Гардеробная с подсветкой

Гардеробная
ГК-012
с подсветкой

Гардеробная с раздвижными дверями

Гардеробная
ГК-011
с раздвижными
дверями

Гардеробная в коттедже из ЛДСП

Гардеробная
ГК-010
Бодега Белая

Гардеробная в стиле лофт

Гардеробная
ГК-009
Лофт

Cетчатая гардеробная Aristo

Гардеробная
ГК-006
Аристо

Гардеробная из ЛДСП

Гардеробная
ГК-003
ЛДСП Egger

Гардеробная в прихожей

Гардеробная
ГК-002
в прихожей

Угловая гардеробная

Гардеробная
ГК-004
Угловая

Гардеробная на 250 сотрудников

Гардеробная
ГК-005

Гардеробная комната из ЛДСП

Гардеробная
ГК-001
Фино Бронза

П-образная гардеробная

П-образная
гардеробная
ГК-007

П-образная мебель для гардеробной

Гардеробная
ГК-008
с комодом

ПРЕДВАРИТЕЛЬНЫЕ КОНСУЛЬТАЦИИ И РАСЧЕТ ЦЕНЫ

тел. : +7 (985) 951-43-97

Мессенжеры:

WhatsApp

Telegram

Max

E-mail: taburet@df.ru



г. Москва, Нахимовский пр-т, д.24 стр. 9 (вход с Севастопольского пр-та), Центр Дизайна и Интерьера "Экспострой на Нахимовском", павильон №3а, 3 этаж, оф.311

Ближайшее метро "Профсоюзная" или "Нахимовский проспект", пересечение Севастопольского и Нахимовского проспектов.

Продукция

Покупателю

В НАЧАЛО


Мы в социальных сетях: Свежие Новости, Акции и Скидки!

Instagram Telegram Facebook Twitter Вконтакте

Присоединяйтесь!

Рейтинг@Mail.ru


13.04.2026

Политика конфиденциальности

© 2000 - 2026 Taburetka.RU